✓ Opmåling af eksisterende byggeri ✓ Målfaste plantegninger ✓ Dokumentation til byggesag Tjekker...
Lovliggørelse af byggeri og dokumentation
Lovliggørelse • Opmåling • Dokumentation

Lovliggørelse af byggeri starter med korrekt opmåling

Skal du have styr på en kælder, tilbygning, garage, udestue eller andet eksisterende byggeri?
Ark3D hjælper dig med præcis opmåling, arealopgørelse og målfaste tegninger, så du får et professionelt grundlag til næste skridt i sagen.

Pris fra 4.799 kr. eks. moms
Kælder, garage og tilbygning
Få klarhed i din sag

Få klarhed før sagen vokser sig større

Mange opdager først problemer med eksisterende byggeri, når boligen skal sælges, når kommunen beder om dokumentation, eller når gamle tegninger og registreringer ikke stemmer med virkeligheden.

Med Ark3D får du et præcist og professionelt grundlag, så du kan komme videre uden gæt og usikkerhed. Du får klarhed over de faktiske forhold og et materiale, der kan bruges i dialog med kommune, rådgiver, køber eller ejendomsmægler.

BBR opmålinger

Har du brug for en præcis BBR opmåling, hjælper vi også med opmåling og dokumentation af eksisterende byggeri.

Læs mere om BBR

Typiske sager for private

  • Tilbygning eller udestue der skal dokumenteres
  • Kælder eller loft med ændret anvendelse
  • Garage, carport eller skur der skal afklares
  • Tvister mellem registrering og virkelighed
  • Behov for dokumentation før salg

Typiske sager for erhverv

  • Eksisterende bygninger mangler opdateret dokumentation
  • Lejemål og erhvervsarealer skal opmåles korrekt
  • Ombygning og projektering kræver præcise mål
  • Afvigelser mellem tegninger og bygning skal afklares
  • Rådgivere mangler et pålideligt grundlag

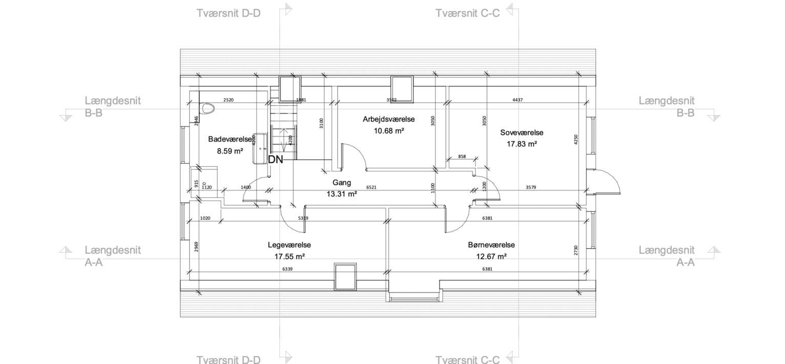
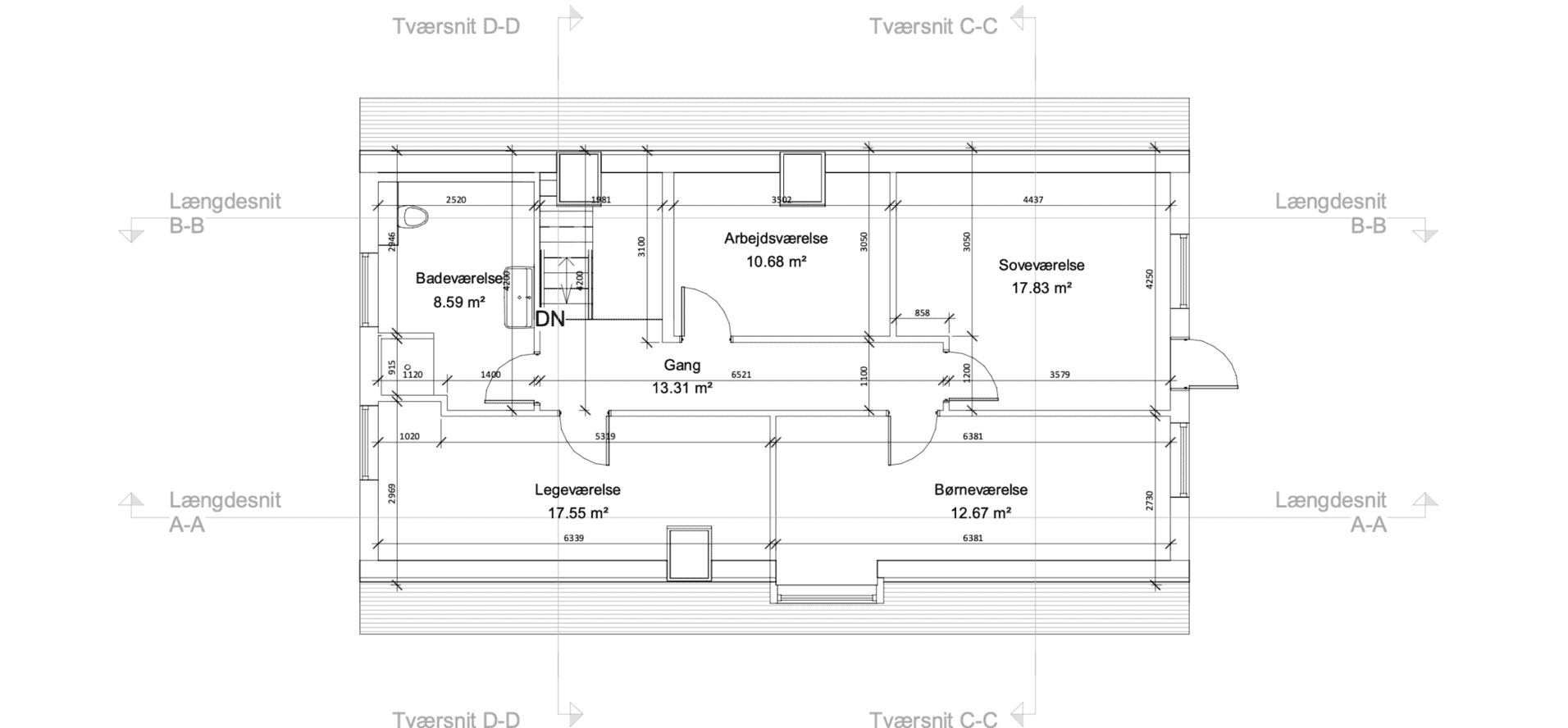
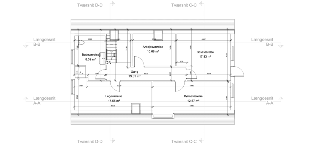
Se kvaliteten før du bestiller

Her kan du se et eksempel på den type materiale, du modtager. Det giver dig et klart billede af, hvor professionelt og brugbart dit grundlag bliver.

📄 Hent BBR-eksempel (PDF)
Eksempel på arealopgørelse og plantegning
100% MÅLFAST

Vigtigt: Vi hjælper med dokumentationsgrundlaget

Ark3D hjælper ikke med selve myndighedsgodkendelsen, men med det materiale, der ofte er nødvendigt for at komme videre: opmåling, arealopgørelse og målfaste plantegninger af det eksisterende byggeri.

Det giver dig et stærkere og mere brugbart udgangspunkt i dialogen med kommune, byggesagkyndig, arkitekt eller anden rådgiver.

Det her får du leveret

Du får et professionelt og overskueligt materiale, som gør det lettere at dokumentere det eksisterende byggeri og komme videre i sagen.

Målfaste plantegninger Et klart og professionelt overblik over bygningens faktiske indretning og mål.
Arealopgørelse Et dokumenteret grundlag for arealer, som kan bruges videre i byggesag eller afklaring.
Grundlag til rådgivere Materiale som arkitekt, byggesagkyndig eller kommune nemt kan arbejde videre med.
DWG/CAD som tilvalg Et oplagt valg når materialet også skal bruges til projektering eller teknisk viderebearbejdning.

Sådan foregår det

1
Du sender adresse og kort beskrivelse

Fortæl hvad der skal afklares, og hvilke dele af bygningen sagen handler om.

2
Vi måler bygningen op

Ark3D foretager opmåling og registrering af de relevante arealer og bygningsdele.

3
Du modtager tegning og dokumentation

Du får et brugbart materiale til næste skridt i sagen med rådgiver, mægler eller kommune.

"Johnny leverer et præcist og brugbart opmålingsgrundlag, som gør det lettere at komme videre i sager, hvor dokumentation og overblik er afgørende." Brian Munk Munk Advice

Ofte stillede spørgsmål

Kan I hjælpe med lovliggørelse af kælder?

Ja, vi kan hjælpe med opmåling og dokumentation af kælderen, så du får et grundlag til videre afklaring. Selve godkendelsesprocessen håndteres typisk af kommune eller rådgiver.

Kan I hjælpe med garage, udestue eller tilbygning?

Ja, det er typiske sager. Vi hjælper med at opmåle og dokumentere eksisterende byggeri, så de faktiske forhold bliver tydelige.

Er jeres materiale nok til kommunen?

Det afhænger af sagen. Vi leverer et stærkt dokumentationsgrundlag, men nogle sager kræver også øvrige bilag eller rådgivning.

Vil du læse mere, før du beslutter dig?

Se hvordan Ark3D arbejder med opmåling, dokumentation og afklaring af eksisterende byggeri.

Læs mere om BBR her
Har du spørgsmål eller vil du have en pris nu?